Dennis Hall

Dennis Hall houses 98 students in single and double rooms with hall bathrooms. During the summer of 2023, Dennis Hall was renovated and received multiple upgrades to include updated HVAC, new flooring, bathroom upgrades, lounge updates and more. All rooms have wood laminate flooring.

Completed in l964, Dennis Hall was the gift of Overton D. Dennis, a member of the Richmond College Class of 1910, in memory of his brother, Eugene T. Dennis.

To get a better look at where you might be living, take a Virtual Tour of a Double room.

Expand All
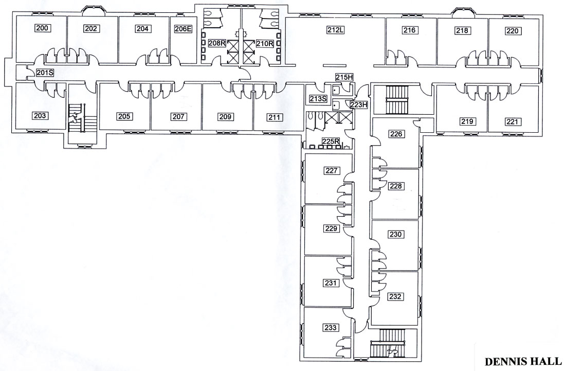
  • First Floor

    View Floor Plan

    0100 - Double: 13’6" x 14’6" - 2 Closets, 1 Window
    0101 - Double: 13’5" x 14’6" - 2 Closets, 1 Window
    0102 - Double: 13’6" x 14’6" - 2 Closets, 1 Bay Window
    0103 - Double: 13’5" x 14’6" - 2 Closets, 1 Window
    0104 - Double: 13’6" x 14’6" - 2 Closets, 1 Window
    0105 - Double: 13’5" x 14’6" - 2 Closets, 1 Window
    0106 - Single: 7’3" x 13’6" - 1 Closet, 1 Window
    0107 - Double: 13’5" x 14’6" - 2 Closets, 1 Window
    0111 - Double: 13’5" x 14’5" - 2 Closets, 1 Window
    0116 - Double: 13’6" x 14’6" - 2 Closets, 1 Window
    0118 - Double: 13’6" x 14’6" - 2 Closets, 1 Bay Window
    0119 - Single: RA Room
    0120 - Double: 13’6" x 14’6"’ - 2 Closets, 1 Window
    0121 - Double: 13’5" x 14’5" - 2 Closets, 1 Window
    0125 - Double: 13’5" x 14’5" - 2 Closets, 1 Window
    0127 - Double: 13’6" x 14’6" - 2 Closets, 1 Window
    0129 - Single
    0131 - Double: 14’ x 13’3" - 2 Closets, 1 Window

  • Second Floor

    View Floor Plan

    0200 - Double: 13’6" x 14’6" - 2 Closets, 1 Window
    0202 - Double: 13’6" x 14’6" - 2 Closets, 1 Bay Window
    0203 - Double: 13’5" x 14’6" - 2 Closets, 1 Window
    0204 - Double: 13’5" x 14’6" - 2 Closets, 1 Window
    0205 - Double: 13’5" x 14’7" - 2 Closets, 1 Window
    0207 - Double: 13’5" x 14’6" - 2 Closets, 1 Window
    0209 - Double: 13’5" x 14’6" - 2 Closets, 1 Window
    0211 - Double: 13’5" x 14’6" - 2 Closets, 1 Window
    0216 - Double: 13’6" x 14’6" - 2 Closets, 1 Window
    0218 - Double: 13’6" x 14’6" - 2 Closets, 1 Bay Window
    0219 - Double: 13’5" x 14’8" - 2 Closets, 2 Windows
    0220 - Double: 13’6" x 14’6" - 2 Closets, 1 Window
    0221 - Double: 13’5" x 14’5" - 2 Closets, 1 Window
    0226 - Single: RA Room
    0227 - Double: 13’6" x 14’6" - 2 Closets, 1 Window
    0228 - Double: 13’5" x 14’6" - 2 Closets, 1 Window
    0229 - Double: 13’6" x 14’6" - 2 Closets, 1 Window
    0230 - Double: 13’5" x 14’6" - 2 Closets, 1 Window
    0231 - Double: 13’6" x 14’6" - 2 Closets, 1 Window
    0232 - Double: 13’5" x 15’5" - 2 Closets, 1 Window
    0233 - Double: 13’5" x 14’6" - 2 Closets, 1 Window

  • Third Floor

    View Floor Plan

    0300 - Single: RA Room
    0301 - Double: 9’ x 24’ - 2 Closets, 2 Windows, Alcove
    0304 - Double: 14’3" x 14’4" - 2 Closets, 1 Window, Alcove
    0306 - Double: 14’ x 14’8" - 2 Closets, 1 Window, Alcove
    0310 - Double: 14’4" x 14’6" - 2 Closets, 1 Window, Alcove
    0314 - Double: 14’4" x 14’6" - 2 Closets, 1 Window, Alcove
    0316 - Double: 14’4" x 14’6" - 2 Closets, 1 Window, Alcove
    0318 - Double: 14’4" x 14’6" - 2 Closets, 2 Windows, Alcove
    0325 - Double: 14’3" x 14’7" - 2 Closets, 1 Window, Alcove
    0327 - Double: 14’4" x 14’6" - 2 Closets, 1 Window, Alcove
    0329 - Double: 12’7" x 14’3" - 2 Closets, 1 Window, Alcove
    0331 - Single: 9’3" x 13’9" - 1 Closet, 1 Window, Alcove