Residence Hall #2 (Previously Thomas)

Residence Hall #2 (Previously Thomas) was fully renovated in 2015 and houses 86 upperlevel students in suite style rooms.  Since re-opening RH2 has been an attractive hall for students and received additional upgrades and improvements in the summer of 2023.

On March 26, 2022 the Board of Trustees, following research, voted to remove the names of building on campus that were named for individuals who were enslavers.

James Thomas, Jr. Memorial Hall was completed in 1913 as one of the first two dormitories on the University’s new campus and was initially referred to as “Dormitory No. 2.” It was named by the Board of Trustees in 1916 in memory of James Thomas, Jr. (1806-1882) in recognition of his service to the institution. Thomas was a founding Trustee of Richmond College, serving initially as Treasurer and later as President (i.e., Chair) of the Board of Trustees (1872-1873 and 1880-1882). His financial support enabled the University to re-open after its financial ruin in the Civil War. Thomas was the owner of tobacco factories that he operated using the labor of scores of enslaved people. According to Federal Census records, he enslaved more than 100 individuals in Richmond and was also an extensive participant in the “slave hire” system of leasing laborers from their enslavers.

To get a better look at where you might be living, take a Virtual Tour of a Single/Double Suite.

Expand All
  • Ground Level

    Availability of rooms is subject to change.

    View Floor Plan

    • 0003 - Double Separate: 13’ x 15’6" 
    • 0005 - Double Separate: 11’ x 18’
    • 0011 - Single/Double Suite: RA Suite
      • A - Double
      • B - Single: RA Room
    • 0013 - Single/Double Suite
      • Room A - Double: 12’ x 17’
      • Room B - Single: 9’6" x 13’6"
    • 0019 - Single/Double Suite
      • Room A - Single: 10’ x 12’
      • Room B - Double: 9’ x 15’
    • 0020 - Single Separate: 8’6" x 11’6" 
    • 0022 - Single Separate: 11’ x 11’6"
    • 0023 - Double Separate: 11’ x 20’ 
  • First Floor

    Availability of rooms subject to change.

    View Floor Plan

    • 0100 - Single/Double Suite: ADA/Accessible
      • Room A - Single: 9’ x 15’
      • Room B - Double: 14’ x 15’6"
    • 0101 - Single Separate: 10’6" x 11’ 
    • 0103 - Single Separate: 10’6" x 12’ 
    • 0111 - Double Separate: 12’ x 15’
    • 0112 - Single/Double Suite: RA Suite
      • A - Single: RA Room
      • B - Double
    • 0114 - Double Separate: 11’6" x 15’6" 
    • 0116 - Single/Single Suite
      • Room A - Single: 9’ x 12’
      • Room B - Single: 8’6" x 11’6"
    • 0117 - Single/Double Suite
      • Room A - Single: 8’ x 12’
      • Room B - Double: 11’ x 16’
    • 0118 - Single Separate: 8’ x 11’ - Private Bath
    • 0121 - Single/Double Suite
      • Room A - Single: 9’ x 15’6"
      • Room B - Double: 13’ x 17’
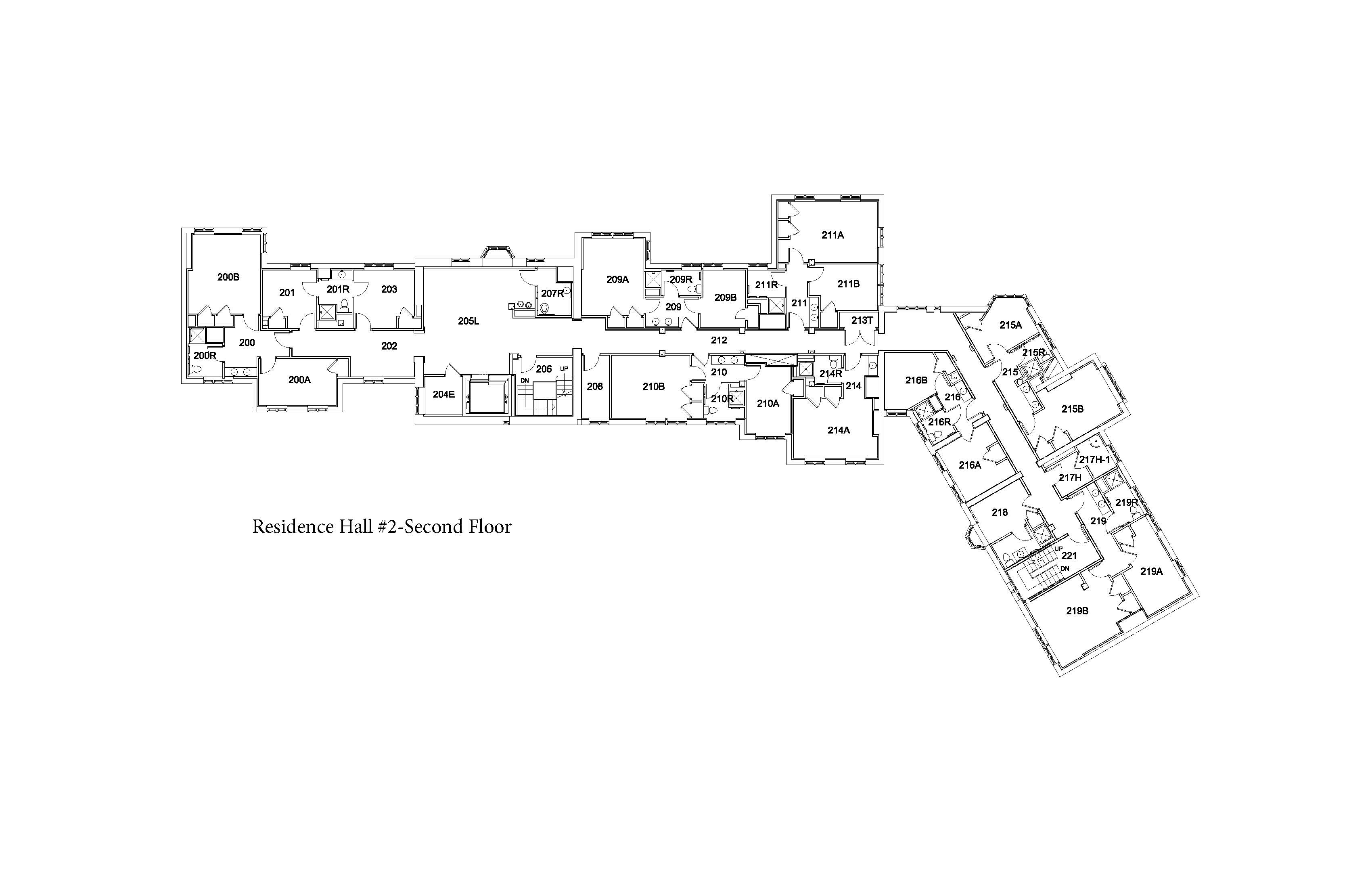
  • Second Floor

    Availability of rooms subject to change.

    View Floor Plan

    • 0200 - Single/Double Suite: ADA/Accessible
      • Room A - Single: 9’ x 15’
      • Room B - Double: 14’ x 15’6"
    • 0201 - Single Separate: 10’6" x 11’
    • 0203 - Single Separate: 10’6" x 12’ 
    • 0209 - Single/Double Suite
      • Room A - Double: 12’ x 15’
      • Room B - Single: 8’6" x 11’6"
    • 0210 - Single/Double Suite: RA Suite
      • A - Single: RA Room
      • B - Double
    • 0211 - Single/Double Suite
      • Room A - Double: 12’ x 17’
      • Room B - Single: 9’ x 13’
    • 0214 - 11.6 x 15.6 Double Separate
    • 0215 - Single/Double Suite
      • Room A - Single: 8’ x 12’
      • Room B - Double: 11’ x 16’
    • 0216 - Single/Single Suite
      • Room A - Single: 9’ x 12’
      • Room B - Single: 10’ x 11’
    • 0218 - Single Separate: 8’ x 11’ - Private Bath
    • 0219 - Single/Double Suite
      • Room A - Single: 9’ x 15’6"
      • Room B - Double: 13’ x 17’
  • Third, Fourth, and Fifth Floors

    Availability of rooms subject to change.

    View Floor Plan

    • 0301 - Double/Double Suite
      • Room A - Double: 11’ x 17’6"
      • Room B - Double: 12’ x 15’6" 
    • 0304 - Double Separate: 8’6" x 16’6" 
    • 0305 - Double Separate: 8’6" x 22’ 
    • 0306 - Single Separate: 8’ x 13’ 
    • 0307 - Double Separate: 13’ x 13’6" 
    • 0308 - Single Separate: RA Room - Private Bath
    • 0311 - Double Separate: 11’6" x 16’ 
    • 0312 - Single Separate: 8’ x 13’  - Private Bath
    • 0313 - Double Separate: 14’ x 16’ 

     

    • 0401 - Single/Single Suite
      • Room A - Single: 9’ x 13’
      • Room B - Single: 9’6" x 13’

     

    • 0501A - Double Separate: 12’6" x 16’
    • 0501B - Double Separate: 12’6" x 17’